Флігель «з ромашками»
Флігель «з ромашками» — пам'ятка архітектури, зведена в Києві за проектом невідомого архітектора в 1910-ті роки в стилі модерну. Знесено 6 жовтня 2016 року.[2] Флігель розміщувався на вулиці Золотоустівській, 35.
| Флігель «з ромашками» | |
|---|---|
![]() | |
| 50°27′04″ пн. ш. 30°29′11″ сх. д. | |
| Країна |
|
| Місто | Київ |
| Розташування | вулиця Золотоустівська, 35 |
| Тип | будівля |
| Тип будівлі | флігель |
| Поверхів | 2 |
| Стиль | модернізм |
| Дата заснування | 1910-ті |
| Дата будівництва | 1910-ті |
| Статус |
пам'ятка архітектури та містобудування (без охоронного номера)[1] |
| Стан | знесений |
| |
Історія

Фасад двоповерхового будинку прикрашали дві величезні білі ромашки, пелюстки яких зливались воєдино. Вони символізували любов і юність. Через це ходила легенда, що побувавши в старовинній садибі, можна знайти своє кохання і створити міцну сім'ю.[3][4]
Наказом Головного управління охорони культурної спадщини від 10.06.2011 № 10/34-11 додано в перелік щойно виявлених об'єктів культурної спадщини.
У 2013 році з цього будинку виселили усі організації, визнавши будинок аварійним, але ремонтувати пам’ятку не стали.[5]
Літом 2015 року неподалік від будівлі на вулиці Золотоустівська, 27 почалось будівництво житлового комплексу «Шевченківський», а пам'ятку було огороджено парканом.
У 2016 році в будівлі двічі ставалась пожежа. Як зазначено на офіційному порталі Києва, «УкрНДІпроектреставрація» проводила експертизу й визначила, що будівля є аварійною, такою що втратила частину свого об'єму та не відповідає критеріям об’єкта культурної спадщини.[6] Пізніше Департамент культури КМДА (наказ №172 від 21.09.16) виключив пам'ятку з реєстру, а згодом її було знесено корпорацією «Укрбуд».[7]
Креслення будинку
Фасад у вісях 1—5
Фасад у вісях 5—1
Фасад у вісях А-Д
Фасад у вісях Д—А
План цокольного поверху
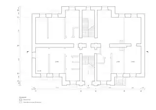
План першого поверху
План другого поверху
Переріз 1-1
Галерея зображень
Бічний фасад, 2012
Тиловий фасад, 2012
Головний фасад, 2015
Будівельний майданчик на місці пам'ятки, 2018
Джерела
- Звід історії пам'яток Києва
- В центрі Києва знесли будинок-пам’ятку через будівництво ЖК
- Київ – без містичних ромашок
- Вулиця Златоустівська в Києві – водоспади, будинок з ромашками і залізний храм
- Памятник архитектуры на Златоустовской, 35 киевская власть готовит к сносу
- Флігель «з ромашками» на вул. Златоустівській, 35 ніколи не перебував на державному обліку як пам'ятка культурної спадщини
- Столична влада не помітила культурної цінності у знесеній 100-річній садибі

